Domů » ModulLine 2P
Domů » ModulLine 2P
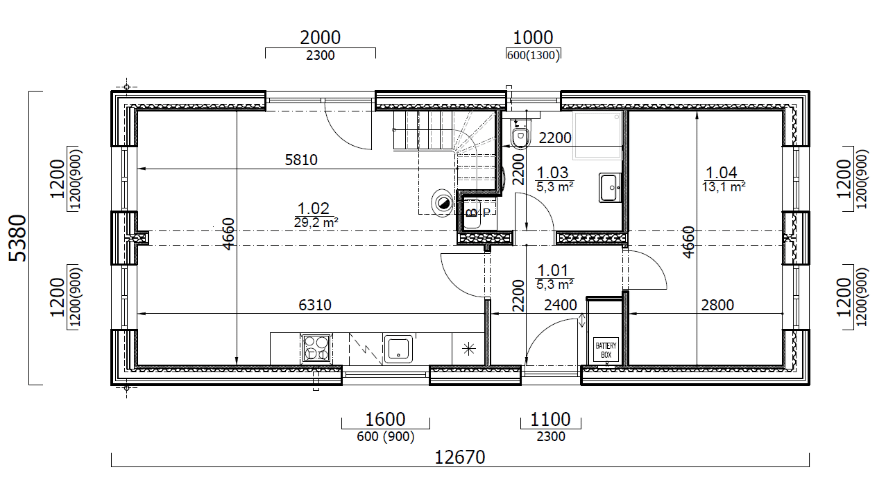
ModulLine 2P je typový dům s obytnou plochou 105 m2 – 1. NP 58 m2 a 2. NP na 56 m2. Základ tvoří robustní svařovaný ocelový rám, doplněný skladbou dřevěného izolovaného rastru ve svilých stěnách. Toto konstrukční řešení spojuje pevnost ocelových domů s komfortem dřevostaveb.
Dům nabízí dispozici 4kk. V přízemí se nachází ložnice, malá technická místnost, koupelna a prostorný obývací pokoj s kuchyňským koutem a segmentovým schodištěm do patra. V zatepleném podkroví jsou umístěny dva útulné menší pokoje.
Tradiční tvar domu respektuje charakter české zástavby a standardně splňuje požadavky územních plánů v lokalitách se sedlovou střechou. Máme také zkušenosti s realizací staveb v chráněných krajinných oblastech (CHKO).
Na přání klienta nabízíme individuální rozmístění oken a dveří tak, aby dům co nejlépe odpovídal vašim představám i specifikům konkrétního pozemku.
Ideálním způsobem založení stavby jsou betonové patky.
