Domů » ModulCont 2.5A
Domů » ModulCont 2.5A
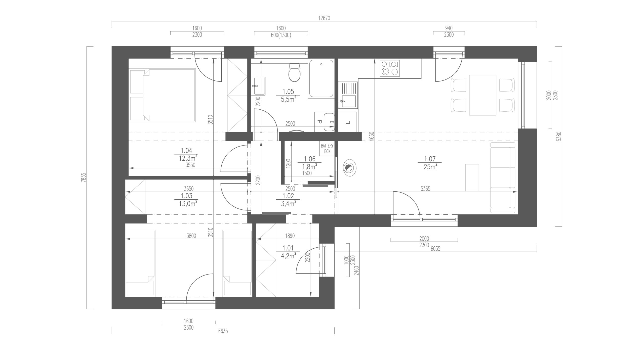
Typová stavba ModulCont 2.5A, vytvořená ze dvou a půl lodních kontejnerů HC40’, patří mezi nejoblíbenější řešení zejména pro menší rodiny. Obytná plocha 66 m², atypický půdorys umožňující realizaci terasy kryté ze dvou stran a promyšlená dispozice řadí tento model mezi stálice naší nabídky.
Nejčastěji je ModulCont 2.5A poptáván v dispozici 3+kk. Nabízí dvě prostorné ložnice, koupelnu, technickou místnost a obytný prostor s kuchyňskou linkou. Praktickým bonusem je také zádveří s možností dodatečného úložného prostoru. Klientské úpravy půdorysu jsou možné.
Na přání umožňujeme individuální rozmístění oken a dveří tak, aby dům co nejlépe odpovídal Vašim představám i konkrétním podmínkám pozemku.
Ideálním řešením založení stavby jsou betonové patky.
